






Cage Street Workout SW022
Cage Street Workout outdoor, structure street workout, cage calisthénics, cage outdoor
La Cage de Street Workout est en acier (100 x 100 x 3 mm), elle est protégé contre la corrosion par le zingage afin de prolonger la durée de vie de la structure et de lutter contre les intempéries.
Tous les éléments comme les poignées, les barres parallèles sont recouverts d'une peinture cuite au four Komaxit selon couleur RAL. Possibilité de fabrication en acier inoxydable.
L'installation de la cage de Street Workout se fera soit sur une dalle béton ou par plot béton sous chaque point d'ancrage.
Toutes les planches ou bancs sont fabriqués en HDPE de haute qualité (Polyéthylène coloré haute pression, caractérisé par une stabilité de couleur élevée, une résistance aux UV et par sa rigidité et l'absence de risque de blessure dû à des fragments brisés et coupants).
Tous les matériaux de connexion sont en zinc ou en acier inoxydable.
Couleur : rouge, bleu, gris, orange, vert, jaune
Âge recommandé : | 15 ans et plus |
Hauteur de chute libre : | 1,5 m |
La capacité de charge : | 705 kg |
Nombre maximum d'utilisateurs : | 9 |
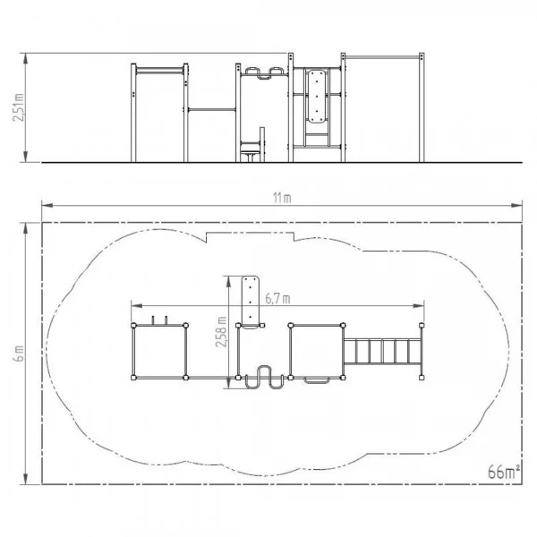
Dimensions : | 6.75 x 2.58 x 2.51 m |
Surface requise pour le montage : | 11 x 6.5 m |
Surface amortissante : | Surface d'herbe 71.5 m² |
10 autres produits dans la même catégorie :
Cage Street Workout SW005
Station One Bar 2.1 Street Workout
Station One Bar 1.1 Street Workout
Cage Street Workout SW016
Station One Bar 2.0 Street Workout
Cage Street Workout SW018
Element Street Workout ESW002
Station Twins 2.0 Street Workout
Station Free Bird 3.1 Street Workout
